Kircheis Planungsbüro Kircheis Planungsbüro
  • Bundespreisträger 2013
  • Projekte
    • Wohnen
    • Gewerbe
    • Denkmal
    • Stadtplanung
  • Büro
    • Leistungen
    • Team
  • 3D- pdf
  • Raumpflege
  • Videos
  • Home
  • Anfahrt
  • Kontakt
  • Impressum
  • Datenschutz

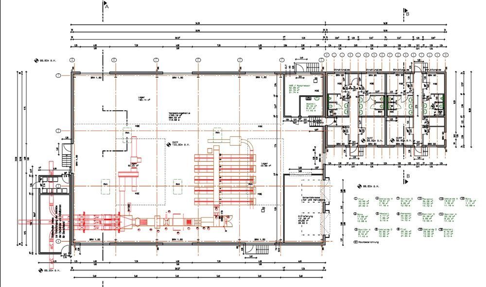
Gewerbe / Industriebau

Lernfabrik
 

Für unsere Kunden aus dem gewerblichen Bereich sind wir in der  Ansprechpartner für die verschiedensten Bauaufgaben und oft als Berater und Koordinator tätig.

Zu unseren Aufgaben gehört nicht nur die reine Gebäudeplanung, sondern auch die Einordnung und Erschließung im Gelände, die Erstellung von Produktionsschemata zum Material und Personenfluss, sowie Infrastrukturplanungen und vieles mehr.

R0016049GR-FPSTR0015920

  

© 2026 - Kircheis Planungsbüro
  • Home
  • Anfahrt
  • Kontakt
  • Impressum
  • Datenschutz
  • Bundespreisträger 2013
  • Projekte
    • Wohnen
    • Gewerbe
    • Denkmal
    • Stadtplanung
  • Büro
    • Leistungen
    • Team
  • 3D- pdf
  • Raumpflege
  • Videos